Hopp til innholdet

Stjerneveien 38, Vettakollen

Eiendommen på kartet

Arkitettegnet murvilla øverst på Vettakollen med panoramautsikt. Basseng, hagestue, garasje. Rammetillatelse gitt!

Eiendomstype

Enebolig

Eierform

Selveier

Bruksareal

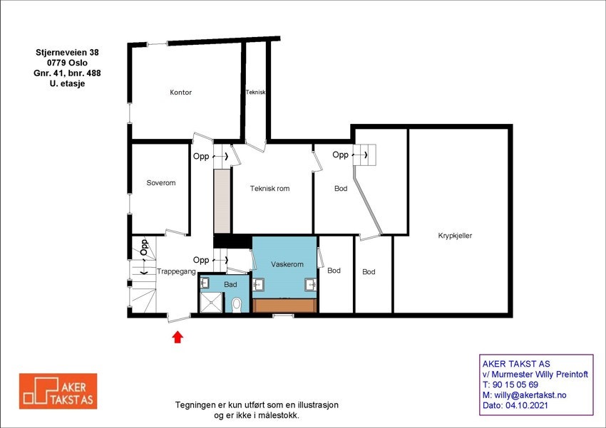
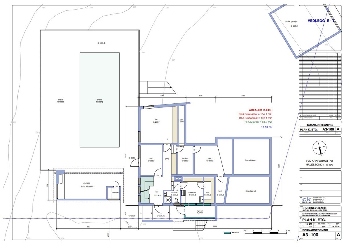
264 m2

Byggeår

1959

Soverom

4

Tomteareal

1709 m2

Oppdragsnummer

159230360

Bruksareal

324 m2

Bruksareal

264 m2

BRA-E (eksternt bruksareal)

60 m2

TBA (terrasse- / balkongareal)

41 m2

Gårdsnr.

41

Bruksnr.

488

Kommunenr.

0301

Byggeår

1959

Eiendomstype

Enebolig

Eierform

Selveier

Tomtetype

Eiet tomt

Tomteareal

1709 m2

Energimerke

G

Oppvarmingskarakter

Rød

Soverom

4

Bad

2

Oppholdsrom

2

Antall rom

6

Kommunale avgifter pr.

34 671,-

Ligningsverdi

36 900 585,-

Fasiliteter

Utsikt ikonUtsikt

Bademulighet ikonBademulighet

Turterreng ikonTurterreng

Rolig ikonRolig

Balkong/terrasse ikonBalkong/terrasse

Peis ikonPeis

Parkering ikonParkering

Barnevennlig ikonBarnevennlig

Utsikt ikon Utsikt

Bademulighet ikon Bademulighet

Turterreng ikon Turterreng

Rolig ikon Rolig

Balkong/terrasse ikon Balkong/terrasse

Peis ikon Peis

Parkering ikon Parkering

Barnevennlig ikon Barnevennlig

Parkett ikon Parkett

Bredbånd ikon Bredbånd

Offentlig vann/kloakk ikon Offentlig vann/kloakk

Nabolag

Vurderer du å selge?

Kontakt oss gjerne, så viser vi deg hvordan salgsprosessen blir for nettopp din eiendom gjennom PrivatMegleren.

Gode råd til deg som er på boligjakt

Før starter, er det fint å tenke over hvor du ønsker å bo, hvor langt du ønsker og kan strekke deg økonomisk og hvilke krav eller ønsker du har til boligen og området. Hold fast ved vurderinger, selv om budrunden blir hektisk. Lag gjerne en prioritering av ønskene dine, slik at det er enklere for deg å vurdere hvis ikke alt er helt slik du ønsker. Er terrasse viktigere enn garasje? Er peis viktigere enn et ekstra baderom? Er størrelsen på hagenviktigere enn hvor nært nabohuset er?

2. Vær forberedt til visning
Sett deg inn i salgsoppgave og boligsalgsrapport på forhånd. Noter gjerne spørsmål du ønsker å stille megler og eventuelt selger. Er det utstedt ferdigattest på boligen? Er rommene godkjent for varig opphold?

3. Gjør deg kjent med uteområdet til eiendommen og nærområdet.
Sjekk hva som er av butikker, offentlig kommunikasjon, matbutikk og eventuelt barnehage og skole hvis det er aktuelt. Sett deg også inn i eventuelle vedtekter og husordensregler som gjelder for den boligen du vurderer å kjøpe. Er det tillatt å leie ut? Er det tillatt med kjæledyr?

4. Finansiering
Finn ut hva du ønsker og kan kjøpe for, spesielt i forhold til finansiering. Et råd er å holde seg til den beløpsgrensen du har satt deg, selv om det er lett å la seg friste til å by høyere i en hektisk budrunde. Ikke legg inn bud uten at du er sikker på at du har finansiering i orden. Husk at du ved siden av å betjene lån og eventuelle fellesutgifter, også har løpende utgifter til forsikring, mat, klær, oppvarming, barnehage, reiseutgifter mm. Du bør også avsette et beløp hver måned til å dekke uforutsette utgifter og løpende vedlikehold.

5. Boligselgerforsikring (eierskifteforsikring) og boligkjøperforsikring.
Dersom vilkårene for å tegne slike forsikringer er oppfylt, kan kjøper og selger tegne forsikring gjennom megler. Boligselgerforsikring er selgers forsikring mot krav fra kjøper på grunnlag av skjulte feil og mangler, dvs. mangler som selger ikke kjente til. Når du selger bolig, vil megler spørre deg om du ønsker å tegne boligselgerforsikring. Kjøpsforsikring inneholder boligkjøperforsikring, innboforsikring med superdekning og husforsikring med superdekning (enebolig/hytte). Boligkjøperforsikring er kjøpersmotvekt til selgers boligselgerforsikring. Med boligkjøperforsikring trenger du hverken å tenke på hvor mange advokattimer du bruker, eller hvor mye det koster med nødvendig skadedokumentasjon. Kontakt megleren på salget dersom du ønsker Boligkjøperforsikring.

Detaljene som selger

En attraktiv bolig er resultatet av bevisste valg og et øye for vakre detaljer. Les om detaljer som selger her.

Ser du for deg å by på denne boligen?

Sjekk finansiering med oss.

Ring oss på 232 06001, avtal et videomøte eller chat med oss på nordea.no – alle dager, hele døgnet. Du kan også søke om et finansieringsbevis direkte på nordea.no/finansieringsbevis.

Kjøpsforsikring

Riktig forsikret fra start

Huspakken

Pakken inneholder:
boligkjøper-, hus-, innbo-, flytte- og renteforsikring

19 500,-

Leilighetspakken

For eiendommer med felles bygningsforsikring

Pakken inneholder:
boligkjøper-, innbo-, flytte- og renteforsikring

9 900,-
Renteforsikring gjelder ikke for fritidsboliger.

Hyttepakken

Pakken inneholder:
boligkjøper-, hytte-, innbo- og flytteforsikring

19 500,-

Alle forsikringene i pakken leveres av If forsikring – Nordens største forsikringsselskap. Med forsikringer fra If kan du være trygg på at du har noen av de aller beste forsikringene på markedet.