Hopp til innholdet

Oscars gate 71, FROGNER - OSCARS GATE

Eiendommen på kartet

Klassisk gj.gående 7-roms | Solrik balkong | Vakker jugend gård | Ettertraktet beliggenhet i fasjonabelt strøk

Eiendomstype

Leilighet

Eierform

Eierseksjon

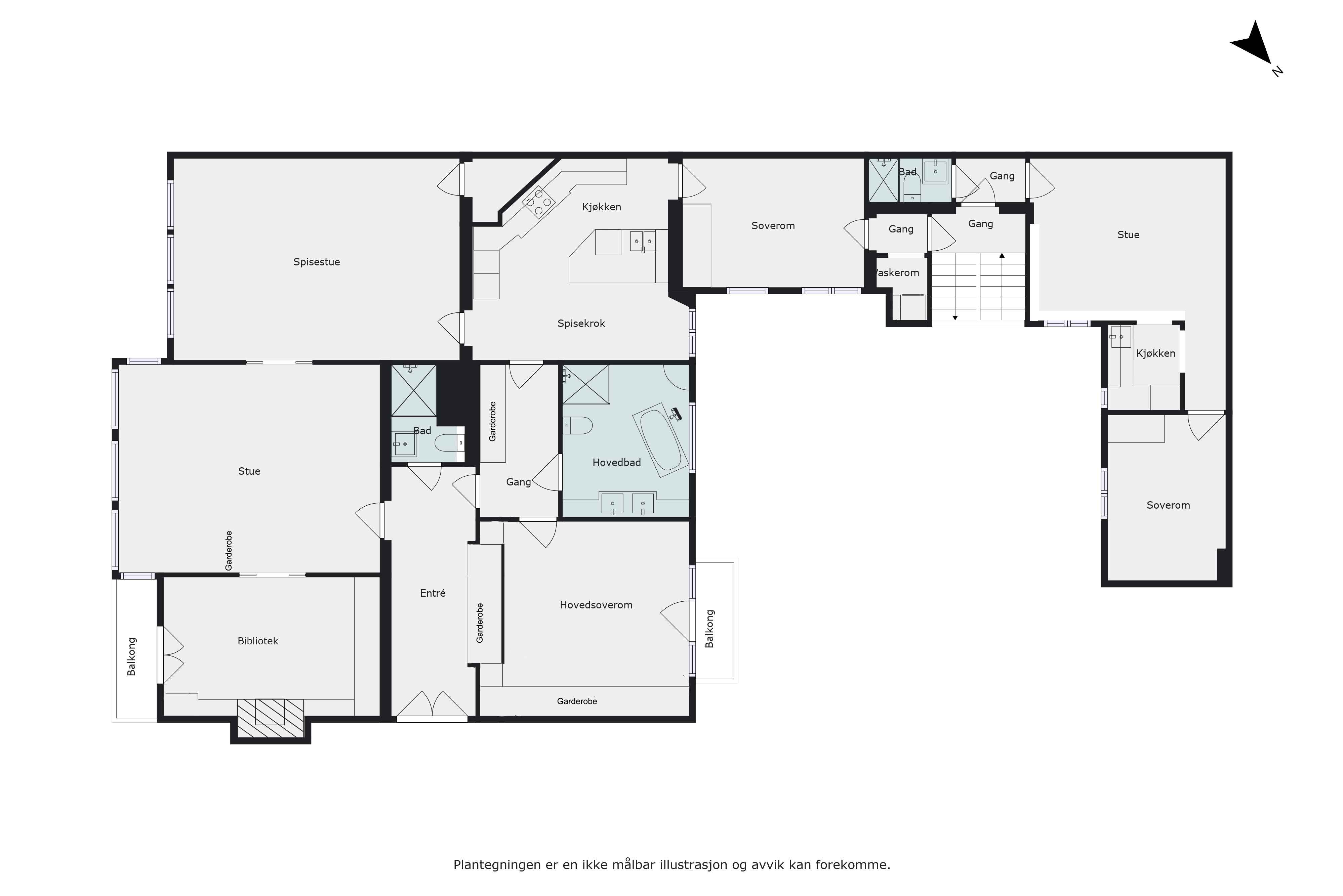
Bruksareal

221 m2

Byggeår

1900

Soverom

3

Tomteareal

980 m2

Oppdragsnummer

321240054

Bruksareal

243 m2

Bruksareal

221 m2

BRA-E (eksternt bruksareal)

22 m2

TBA (terrasse- / balkongareal)

5 m2

Gårdsnr.

213

Bruksnr.

317

Seksjonsnr.

8

Kommunenr.

0301

Byggeår

1900

Eiendomstype

Leilighet

Eierform

Eierseksjon

Tomtetype

Eiet tomt

Tomteareal

980 m2

Energimerke

G

Oppvarmingskarakter

Rød

Etasje

4

Soverom

3

Bad

3

Oppholdsrom

4

Fellesutgifter

8 396,- /mnd

Forretningsfører

Maria Kelly Accounting AS

Fasiliteter

Utsikt ikonUtsikt

Rolig ikonRolig

Sentralt ikonSentralt

Balkong/terrasse ikonBalkong/terrasse

Barnevennlig ikonBarnevennlig

Vaktmestertjeneste ikonVaktmestertjeneste

Bredbånd ikonBredbånd

Kabel-TV ikonKabel-TV

Utsikt ikon Utsikt

Rolig ikon Rolig

Sentralt ikon Sentralt

Balkong/terrasse ikon Balkong/terrasse

Barnevennlig ikon Barnevennlig

Vaktmestertjeneste ikon Vaktmestertjeneste

Bredbånd ikon Bredbånd

Kabel-TV ikon Kabel-TV

Offentlig vann/kloakk ikon Offentlig vann/kloakk

Nabolag

Vurderer du å selge?

Kontakt oss gjerne, så viser vi deg hvordan salgsprosessen blir for nettopp din eiendom gjennom PrivatMegleren.

Gode råd til deg som er på boligjakt

Før starter, er det fint å tenke over hvor du ønsker å bo, hvor langt du ønsker og kan strekke deg økonomisk og hvilke krav eller ønsker du har til boligen og området. Hold fast ved vurderinger, selv om budrunden blir hektisk. Lag gjerne en prioritering av ønskene dine, slik at det er enklere for deg å vurdere hvis ikke alt er helt slik du ønsker. Er terrasse viktigere enn garasje? Er peis viktigere enn et ekstra baderom? Er størrelsen på hagenviktigere enn hvor nært nabohuset er?

2. Vær forberedt til visning
Sett deg inn i salgsoppgave og boligsalgsrapport på forhånd. Noter gjerne spørsmål du ønsker å stille megler og eventuelt selger. Er det utstedt ferdigattest på boligen? Er rommene godkjent for varig opphold?

3. Gjør deg kjent med uteområdet til eiendommen og nærområdet.
Sjekk hva som er av butikker, offentlig kommunikasjon, matbutikk og eventuelt barnehage og skole hvis det er aktuelt. Sett deg også inn i eventuelle vedtekter og husordensregler som gjelder for den boligen du vurderer å kjøpe. Er det tillatt å leie ut? Er det tillatt med kjæledyr?

4. Finansiering
Finn ut hva du ønsker og kan kjøpe for, spesielt i forhold til finansiering. Et råd er å holde seg til den beløpsgrensen du har satt deg, selv om det er lett å la seg friste til å by høyere i en hektisk budrunde. Ikke legg inn bud uten at du er sikker på at du har finansiering i orden. Husk at du ved siden av å betjene lån og eventuelle fellesutgifter, også har løpende utgifter til forsikring, mat, klær, oppvarming, barnehage, reiseutgifter mm. Du bør også avsette et beløp hver måned til å dekke uforutsette utgifter og løpende vedlikehold.

5. Boligselgerforsikring (eierskifteforsikring) og boligkjøperforsikring.
Dersom vilkårene for å tegne slike forsikringer er oppfylt, kan kjøper og selger tegne forsikring gjennom megler. Boligselgerforsikring er selgers forsikring mot krav fra kjøper på grunnlag av skjulte feil og mangler, dvs. mangler som selger ikke kjente til. Når du selger bolig, vil megler spørre deg om du ønsker å tegne boligselgerforsikring. Kjøpsforsikring inneholder boligkjøperforsikring, innboforsikring med superdekning og husforsikring med superdekning (enebolig/hytte). Boligkjøperforsikring er kjøpersmotvekt til selgers boligselgerforsikring. Med boligkjøperforsikring trenger du hverken å tenke på hvor mange advokattimer du bruker, eller hvor mye det koster med nødvendig skadedokumentasjon. Kontakt megleren på salget dersom du ønsker Boligkjøperforsikring.

Detaljene som selger

En attraktiv bolig er resultatet av bevisste valg og et øye for vakre detaljer. Les om detaljer som selger her.

Ser du for deg å by på denne boligen?

Sjekk finansiering med oss.

Ring oss på 232 06001, avtal et videomøte eller chat med oss på nordea.no – alle dager, hele døgnet. Du kan også søke om et finansieringsbevis direkte på nordea.no/finansieringsbevis.

Kjøpsforsikring

Riktig forsikret fra start

Huspakken

Pakken inneholder:
boligkjøper-, hus-, innbo-, flytte- og renteforsikring

19 500,-

Leilighetspakken

For eiendommer med felles bygningsforsikring

Pakken inneholder:
boligkjøper-, innbo-, flytte- og renteforsikring

9 900,-
Renteforsikring gjelder ikke for fritidsboliger.

Hyttepakken

Pakken inneholder:
boligkjøper-, hytte-, innbo- og flytteforsikring

19 500,-

Alle forsikringene i pakken leveres av If forsikring – Nordens største forsikringsselskap. Med forsikringer fra If kan du være trygg på at du har noen av de aller beste forsikringene på markedet.